사업 분야
GEOTECHNICAL DESIGN & CONSTRUCTION
지반 설계 및 시공
CHECK POINT
- 굴착 및 가시설 설계 및 시공
- 지반/지질 조사, 사면조사 설계 및 시공
- 연약지반 처리 및 터널 등 지하구조물 시공 수행, 절토사면 현황작성
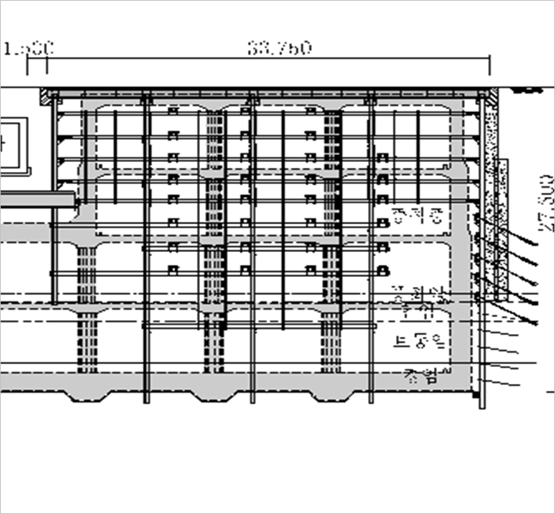
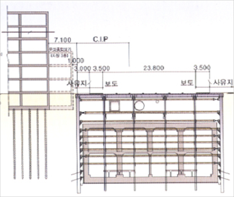
굴착 및 가시설 설계 및 시공
흙막이 벽체 및 지보형식 인접구조물에 대한 영향 및 보강대책 검토 인접 지반의 지하수 영향 및 처리대책 검토 도심지 굴착 설계 및 연약지반 굴착 설계

